Studio 4
<- Studios

Studio 4

Studio 4 is a rehearsal, recording, production and multimedia space (approx. 1000sq ft). Suitable for bands, orchestras, choreography, video shoots and showcases, Studio 4 has been host to a whole number of acts over the years. From Amy Winehouse to Travis, One Direction and Leona Lewis, all prepping for arena sized tours, slots at Glastonbury, with full front of house.

One wall is mirrored (behind acoustic drapes), and the carpeted floor surface can be removed to reveal a marmoleum floor suitable for professional dancers.

The main floor space is 10m x 7m x 6m high, with natural light, plus a mezzanine floor and an adjacent lounge with pool table. Kitchen, toilets and drink facilities are also available.

The room is fed with 3 phase power with CEE sockets, as well as plenty of 3 pin UK sockets as well for high power touring rigs. We can also facilitate Arctic Vans/Luton Lorrys backing up into our raiser shutted that leads straight into the room for ease of loading in.

And if this isn't enough, Studio 3 can also be rented out on a day hire basis for front of house overflow, sectional rehearsals, and more - at 50% off.

With tie lines to the Studio A control room, the acoustic properties of Studio 4 make for an ideal recording space for artists that want a live sound to their records, available 7 days a week.

OUR RATES

4 Hour Day: (10am->2pm / 2pm->6pm) £225*
4 Hour Evening: (6pm->10pm) £250*
8 Hour Day (10am->6pm): £400*
12 Hour Lockout (10am->10pm): £450*
Book Now!
*All prices exclude VAT.
There is a surcharge for sessions outside of normal business hours.

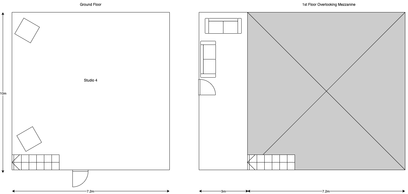
Floorplans

Studio 4 has a main space that contains the PA system, as well as an overlooking mezzanine chillout area.

Diagram not to scale

STUDIO SPECIFICATION

Console and Monitoring (Included)

  • Soundcraft Expression Si3 32 Channel Desk with digital recording interface
  • Clair Bros Audio monitor system incorporating 4 x R4 full range cabs plus subs
  • 6 x QSC K10 monitor wedges

Amps (Available for hire)

  • Ampeg Reverberocket 212R
  • Ampeg SVT Pro 4 Bass Head
  • Ashdown ABM900 Bass Head
  • Ashdown MAG250 Combo
  • divided by 13 FTR 37
  • Eden D410XST
  • Fender Bassman
  • Fender Blues Deville
  • Fender Princeton Chorus
  • Fender Hotrod Deville 4x10
  • Fender HotRod Deluxe Combo
  • Fender The Twin (Red Knob)
  • Fender Vibroking
  • Marshall JCM2000 Triple Super Lead
  • Mesa Boogie MK2
  • Mesa Lone Star
  • Schertler/Unico David
  • Schertler/Unico Freshman
  • SWR Workingman's 8004
  • Vox AC30
  • Yamaha B100 II
  • Yamaha B110 mk 2

Stands (Available for hire)

  • Keyboard stands
  • Guitar stands
  • Mic stands
  • Misc orchestral stands (Trumpet/Saxophone/etc)
  • Sheet music stands

Drum Kits (Available for hire)

  • DW Collectors Series (1980s, 4 piece)
  • DW Collectors Series (1990s, 8 piece)
  • Gretsch USA (6 piece)
  • Pearl Masters (6 piece)
  • Premier Signia Maple (1980s, 6 piece)
  • Yamaha Recording Custom (1980s, 6 piece)

Microphones & DI (Included)

  • 1x AKG D112
  • 1x AKG 300/CK91 cap
  • 1x ATM25
  • 2x ATM23HE
  • 6x Shure SM58
  • 3x Shure Beta 56
  • 2x Shure Beta 58
  • 3x Radial j48 DIs
  • Radial stereo DI
  • 8 way P+R Passive DI

Guitars and Basses (Available for hire)

  • Danelectro Electric 12 String
  • Epiphone Special II Electric Guitar
  • Fender USA Telecaster (2016)
  • Fender USA Jazz Bass (2005)
  • Gibson G200 Acoustic Guitar
  • Gibson SG Special
  • Grecco Speedway G1200 Electric Guitar
  • Yamaha BB-605 5 String Bass

Synths and Keyboards (Available for hire)

  • Korg M3
  • Korg Wavestation
  • Kurzweil K2600X
  • Nord C2 Combo Organ
  • Nord Stage 4
  • Moog Grandmother
  • Moog Little Phatty
  • Roland Juno G
  • Roland Juno Stage
  • Roland XP-80
  • Roland JV-80
  • Roland Xp-10
  • Roland RD-700GX
  • Yamaha Motif XF6
  • Yamaha Motif XF8

Is the backline equipment that you're looking for not listed? Just ask! - as we probably have something in stock to suit your needs.