<- Studios

Studio 1

Studio 1, is an ideal mixing, programming, recording, podcasting, and production space - including an adjoining booth large enough for a drum kit. It is air conditioned (silent), sound proofed, tuned to 100hz, has quadruple glazing and is independently alarmed.

Available on a month to month long term lease basis, Studio 1 is the premiere production suite here at Sensible Studios featuring no shared walls, and natural daylight.

First constructed in the mid 90s, this studio was originally host to East 17 and laid claim to being where records like Up All Night and Resurrection were recorded.

Hiring out this room permits 24 hour access to the premises, access to shared spaces such as our lounges, kitchens, toilets - as well as highly discounted rates for Studio A and Studio 4 - and any of our in stock backline equipment including numerous synths, guitars, basses, amplifiers, mics, outboard, and drum kits.

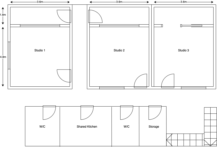
Measurements: 3.6m wide by 4.8m long. Vocal booth: 3.6m wide by 1.8m long.

Studio 1 is fully booked until mid 2026.

OUR RATES

One Month: £2250*
Three Months: £2100*
Six Months: £2000*
Send us an enquiry
*All prices exclude VAT.
There is a surcharge for sessions outside of normal business hours.

Floorplans

Studio 1 features two rooms with seperate entrances through a shared corridor. One room being the main control room, with a secondary room that can be used as a smaller isolated booth. The two rooms come with an XLR patch bay with lines pre-run between them.

Diagrams not to scale


Communal Facilities

Taking on a long term lease at Sensible grants you access to our onsite communal facilities including toilets, kitchens, and lounges across Units A and B.

Just some of our backline...

Available for hire at discounted rates to our residents, whenever you need...

Amps

  • Ampeg Reverberocket 212R
  • Ampeg SVT Pro 4 Bass Head
  • Ashdown ABM900 Bass Head
  • Ashdown MAG250 Combo
  • divided by 13 FTR 37
  • Eden D410XST
  • Fender Bassman
  • Fender Blues Deville
  • Fender Princeton Chorus
  • Fender Hotrod Deville 4x10
  • Fender HotRod Deluxe Combo
  • Fender The Twin (Red Knob)
  • Fender Vibroking
  • Marshall JCM2000 Triple Super Lead
  • Mesa Lone Star
  • Mesa Boogie MK2
  • Neural DSP Quad Cortex
  • Schertler/Unico David
  • Schertler/Unico Freshman
  • SWR Workingman's 8004
  • Vox AC30
  • Yamaha B100 II
  • Yamaha B110 mk 2

Synths and Keyboards

  • ASM Hydrasynth
  • KeyB Organ Duo
  • King Korg
  • Korg M3
  • Korg Wavestation
  • Kurzweil K2600X
  • Mellotron (Original)
  • Moog Little Phatty
  • Nord C2 Combo Organ
  • Nord Lead 3
  • Rhodes Mk ii (1973)
  • Roland Juno 106
  • Roland Juno G
  • Roland Juno Stage
  • Roland XP-80
  • Roland JV-80
  • Roland Xp-10
  • Roland RD-700GX
  • Sequential Prophet-5
  • Wurlitzer 200 (1974)
  • Yamaha Motif XF6
  • Yamaha Motif XF8
  • Yamaha CP70 (Original)

Drum Kits

  • DW Collectors Series (1980s, 4 piece)
  • DW Collectors Series (1990s, 8 piece)
  • Gretsch USA (6 piece)
  • Pearl Masters (6 piece)
  • Premier Signia Maple (1980s, 6 piece)
  • Yamaha Recording Custom (1980s, 6 piece)

Microphones

  • Advanced Audio CM414 (x2)
  • AKG D12
  • AKG C28C (x2)
  • AKG C 451 B
  • AKG C 414 XLS
  • AKG C 414 B-ULS
  • AMS-Calrec ST-250 stereo/surround/soundfield
  • Audix ADX 51
  • Audix ADX 68
  • Audix D2 (x5)
  • Audix D4 (x3)
  • Audix D6
  • Audix I5
  • Audix OM7 Dynamic
  • Audio-Technica ATM23HE
  • Avantone CR14
  • Beyerdynmanic M88
  • Brauner VM1 Tube
  • Calrec Soundfield Mk IV
  • Neumann KMS105
  • Neumann TLM103
  • Neumann U47 FET
  • Neumann U87
  • Shure Super 55
  • Shure SM57 (x7)
  • Shre SM7b (x2)
  • Shure KSM 9 Condensor
  • Shure Beta 91 (x2)
  • Shure 181 beta supercardiod
  • Sennheiser E604 (x5)
  • SSL Connex
  • STC (Coles) 4038 Ribbon
  • Suter C-3 (x2 Matched Pair)

Guitars and Basses

  • Balaguer USA Espada Electric Guitar
  • Danelectro 56-U3 Electric Guitar (Single Coils)
  • Danelectro Electric 12 String Guitar
  • Dingwall Combustion 6 String Bass
  • Epiphone Special II Electric Guitar
  • Fender USA Jazz Bass (2005)
  • Fender Precision Bass
  • Fender MX Telecaster Deluxe (Humbuckers)
  • Fender USA Telecaster (2016)
  • Fender USA Stratocaster (2021)
  • Gibson G200 Acoustic Guitar
  • Gibson SG Special
  • Grecco Speedway G1200 Electric Guitar
  • Ibanez RG550 Electric Guitar
  • Peavey USA Cyberbass
  • Schecter Stiletto Studio 5 String Bass
  • Sudeville Resonator Guitar
  • Yamaha BB-605 5 String Bass

Is the backline equipment that you're looking for not listed? Just ask! - as we probably have something in stock to suit your needs.